Задвижкиа 30с927нж клиновая стальная литая с невыдвижным шпинделем

Задвижка стальная под электропривод
Задвижка клиновая стальная 30с927нж (ДУ400, ДУ500, ДУ600 и ДУ800), выпускаемые клинового типа с невыдвижным шпинделем, допускают оборудование задвижки электрическим приводом. Рабочее давление в 30с927нж может достигать 25 атмосфер, поэтому их установка на нефтепроводящих магистралях оправданна и целесообразна. Благодаря качественному литью корпуса 30с927нж достигается фактически идеальная герметичность. Благодаря широкому диапазону рабочих температур (- 40…300°С), задвижка является поистине универсальным дополнением трубопроводов любого назначения.
Задвижка клиновая стальная 30с927нж оборудована невыдвижным шпинделем под приварку или электропривод, и используется в трубопроводах с диаметрами 400, 500, 600 и 800 мм. Такие задвижки (например, 30с927нж ДУ600 ) эффективны в качестве запорных устройств на воду и пар, и при этом работают при температурах до 300 °С при давлении до 25 кгс/см2.
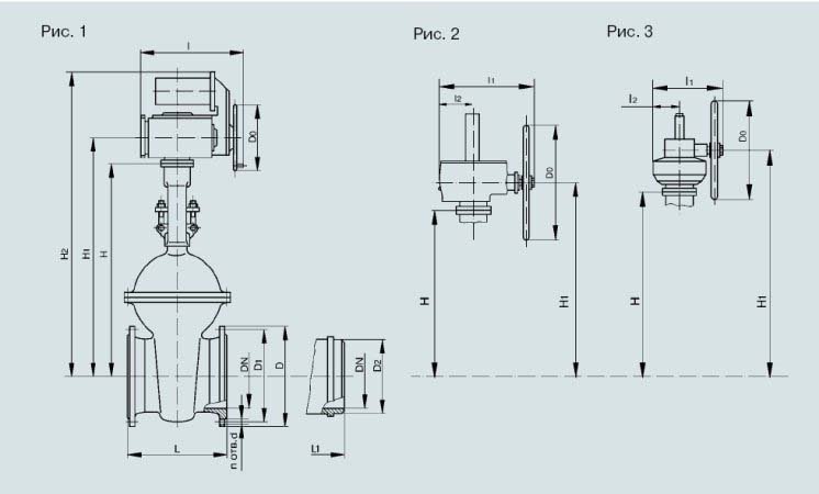
Основные размеры и чертёж 30с927нж

Комплект поставки задвижки стальной 30с927нж
В поставочный комплект задвижек 30с927нж, 30с927нжБ-ХЛ, 30с527нж входят: задвижка, электропривод или редуктор, комплект ответных фланцев с крепёжными деталями и прокладками (необходимость поставки ответных фланцев оговаривается в заказе), паспорт на задвижку, техническое описание и инструкция по эксплуатации на задвижку, паспорт на электропривод, техническое описание и инструкция по эксплуатации на электропривод.
Запросы и заказы 30с927нж
В запросах и заказах задвижек 30с927нж, 30с927нжБ-ХЛ, 30с527нж Вам нужно указать: полное наименование задвижки, диаметр условного прохода, давление номинальное, условное обозначение исполнения, климатическое исполнение, обозначение технических условий на поставку.
Купить или заказать "Задвижкиа 30с927нж клиновая стальная литая с невыдвижным шпинделем", а также узнать оптовые цены можно через форму заказа или по тел.: (067)579-75-35. Доставка по всем городам Украины ;
Еще не вступили в наш телеграм? Тогда ждем Вас

